
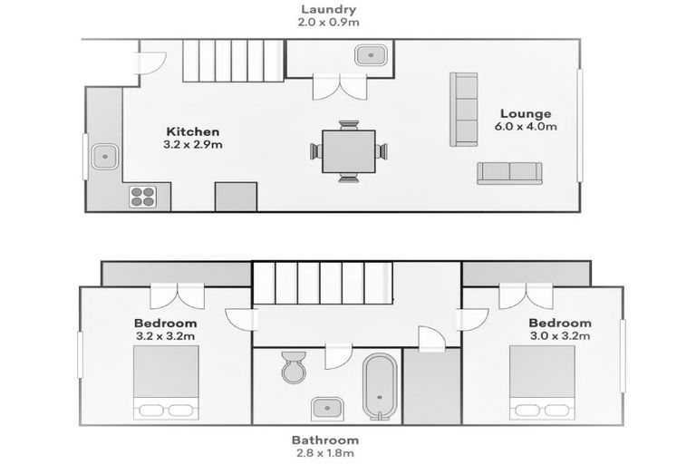
43 Walsh Road, Papakura, 2110 is a Residential property built in 2018 with 2 bedrooms, 1 bathroom and 1 parking space. The property is estimated to be valued in the range of $650,000 to $700,000.
The property last sold on 16 April 2024 for $795,000. On 1 May 2024, 43 Walsh Road, Papakura, 2110 had a Rating Valuation with a Capital Value of $690,000, Land Value of $320,000 and Improvement Value of $370,000.
| Date | Type | Price | Agent/Agency |
|---|---|---|---|
| 16 Apr 2024 | SOLD | $795,000 | |
| 1 Apr 2024 | SOLD | $606,304 | |
| 1 Apr 2024 | SOLD | $680,000 | |
| 1 Apr 2024 | SOLD | $680,000 | |
| 21 Mar 2023 | SOLD | $750,000 | Bradford Hoverd of Harcourts Flat Bush - Hoverd & Co, (Licensed: Reaa 2008) |
| 22 Feb 2023 | BY NEGOTIATION | Price Not Disclosed | Zoe Chan of Harcourts Flat Bush - Hoverd & Co, (Licensed: Reaa 2008) |
| 22 Feb 2023 | BY NEGOTIATION | Price Not Disclosed | Zoe Chan of Harcourts Flat Bush - Hoverd & Co, (Licensed: Reaa 2008) |
| 26 Jan 2023 | SOLD | $730,000 | |
| 26 Aug 2020 | SOLD | $545,000 | Kulwinder Kaur of LJ Hooker Manukau |
| 26 Aug 2020 | SOLD | $545,000 | |
| 29 May 2020 | ASKING PRICE | Price Not Disclosed | Satnam Singh of LJ Hooker Manukau |
| 29 May 2020 | ASKING PRICE | Price Not Disclosed | Satnam Singh of LJ Hooker Manukau |
| 4 Oct 2019 | ENQUIRIES OVER | $560,000 | Wendy Vroegop of Arizto, (Licensed: Reaa 2008) |
| 18 Jun 2018 | SOLD | $575,000 |
Lot 510 Deposited Plan 508969
There are no similar properties in the area that are listed for sale or recently sold.