
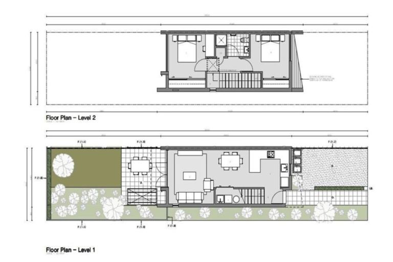
4 Dignity Street, Papakura, 2110 is a Residential property built in 2018 with 2 bedrooms, 1 bathroom and 2 parking spaces. The property is estimated to be valued in the range of $550,000 to $600,000.
The property last sold on 5 August 2019 for $520,000. It was sold by Barfoot & Thompson. On 1 May 2024, 4 Dignity Street, Papakura, 2110 had a Rating Valuation with a Capital Value of $640,000, Land Value of $320,000 and Improvement Value of $320,000.
| Date | Type | Price | Agent/Agency |
|---|---|---|---|
| 6 Oct 2025 | Rented | $550 | Kishon Anufe of Crockers Property Management Ltd, (Licensed: Reaa 2008) |
| 1 Oct 2024 | Rented | $570 | Kishon Anufe of Crockers Property Management Ltd, (Licensed: Reaa 2008) |
| 5 Aug 2019 | SOLD | $520,000 | |
| 27 Mar 2019 | PRICE ON APPLICATION | Price Not Disclosed | Amrik Singh of Barfoot & Thompson Otahuhu |
Lot 113 Deposited Plan 510617
There are no similar properties in the area that are listed for sale or recently sold.