
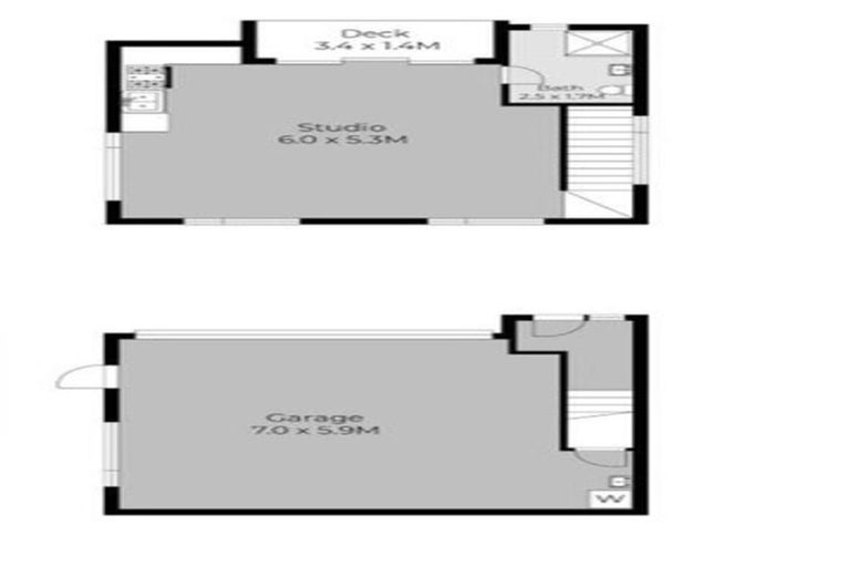
24a Clayden Shuttleworth Street, Papakura, 2110 is a Residential property built in 2022 with 4 bedrooms, 3 bathrooms and 2 parking spaces. The property is estimated to be valued in the range of $900,000 to $1,000,000.
The property last sold on 5 April 2024 for $1,000,000. On 1 May 2024, 24a Clayden Shuttleworth Street, Papakura, 2110 had a Rating Valuation with a Capital Value of $1,050,000, Land Value of $420,000 and Improvement Value of $630,000.
| Date | Type | Price | Agent/Agency |
|---|---|---|---|
| 2 May 2025 | Rented | $700 | Martin Ma of Focus Rental |
| 26 Apr 2024 | Rented | $750 | Vincent Qi of Focus Rental |
| 5 Apr 2024 | SOLD | $1,000,000 | |
| 5 Apr 2024 | SOLD | $1,000,000 | |
| 16 Jan 2023 | BY NEGOTIATION | Price Not Disclosed |
Lot 119 Deposited Plan 572540
There are no similar properties in the area that are listed for sale or recently sold.