
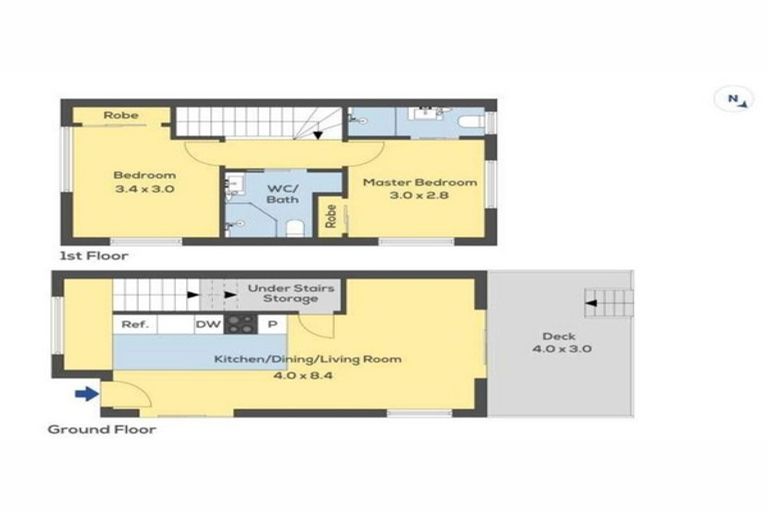
23/11 Ray Small Drive, Papakura, 2110 is a Residential property built in 2017 with 2 bedrooms, 2 bathrooms and 1 parking space. The property is estimated to be valued in the range of $550,000 to $600,000.
The property last sold on 21 October 2020 for $540,000. It was sold by Property Ventures Real Estate Limited, (Licensed: Reaa 2008), and took 149 days to sell. On 1 May 2024, 23/11 Ray Small Drive, Papakura, 2110 had a Rating Valuation with a Capital Value of $610,000, Land Value of $370,000 and Improvement Value of $240,000.
| Date | Type | Price | Agent/Agency |
|---|---|---|---|
| 3 Dec 2020 | Rented | $510 | |
| 21 Oct 2020 | SOLD | $540,000 | |
| 26 May 2020 | ASKING PRICE | $559,000 | Hamish Anderson of Property Ventures Real Estate Limited, (Licensed: Reaa 2008) |
| 6 Mar 2020 | BY NEGOTIATION | Price Not Disclosed | Vikas Kapoor of Barfoot & Thompson Ltd (Licensed: Reaa 2008) - Papakura |
| 19 May 2016 | SOLD | $532,000 | |
| 30 Jul 2013 | SOLD | $2,200,000 |
Principal Unit 23 and Accessory Unit 23A, 23B Deposited Plan 513088
There are no similar properties in the area that are listed for sale or recently sold.