
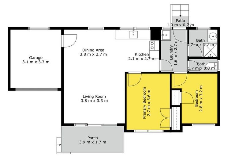
2/36 Trentham Road, Papakura, 2110 is a Residential property built in 1977 with 2 bedrooms, 1 bathroom and 2 parking spaces. The property is estimated to be valued in the range of $500,000 to $550,000.
The property last sold on 3 July 2025 for $485,000. On 1 May 2024, 2/36 Trentham Road, Papakura, 2110 had a Rating Valuation with a Capital Value of $550,000, Land Value of $330,000 and Improvement Value of $220,000.
| Date | Type | Price | Agent/Agency |
|---|---|---|---|
| 1 Jan 2026 | ASKING PRICE | $589,000 | |
| 3 Jul 2025 | SOLD | $485,000 | |
| 2 May 1997 | SOLD | $135,000 |
Unit B and Accessory Unit 2 Deposited Plan 85050
There are no similar properties in the area that are listed for sale or recently sold.