
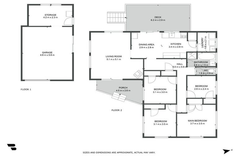
129 Dominion Road, Papakura, 2110 is a Residential property built in 1976 with 4 bedrooms, 1 bathroom and 2 parking spaces. The property is estimated to be valued in the range of $700,000 to $750,000.
The property last sold on 22 August 2024 for $742,000. It was sold by Abbott Real Estate, (Licensed: Reaa 2008). On 1 May 2024, 129 Dominion Road, Papakura, 2110 had a Rating Valuation with a Capital Value of $745,000, Land Value of $640,000 and Improvement Value of $105,000.
| Date | Type | Price | Agent/Agency |
|---|---|---|---|
| 22 Aug 2024 | SOLD | $742,000 | |
| 3 Jul 2024 | Rented | $620 | The Rent Shop Papakura of The Rent Shop Ltd |
| 7 Feb 2024 | ASKING PRICE | $775,000 | Josh Kumar of Abbott Real Estate, (Licensed: Reaa 2008) |
| 8 Sep 2022 | Rented | $600 | The Rent Shop Papakura of The Rent Shop Ltd |
| 24 May 2005 | SOLD | $213,000 | |
| 10 Sep 1984 | SOLD | $65,000 |
Lot 12 Deposited Plan 77697
There are no similar properties in the area that are listed for sale or recently sold.