
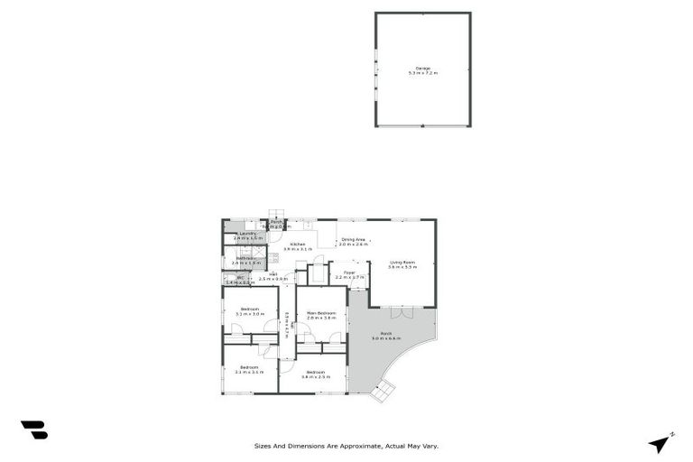
11 Eastburn Street, Papakura, 2110 is a Residential property built in 1967 with 4 bedrooms, 1 bathroom and 4 parking spaces. The property is estimated to be valued in the range of $750,000 to $800,000.
The property last sold on 7 July 2025 for $618,000. It was sold by Bayleys Real Estate - Counties, (Licensed: Reaa 2008). On 1 May 2024, 11 Eastburn Street, Papakura, 2110 had a Rating Valuation with a Capital Value of $840,000, Land Value of $640,000 and Improvement Value of $200,000.
| Date | Type | Price | Agent/Agency |
|---|---|---|---|
| 17 Sep 2025 | Rented | $795 | Quinovic Pukekohe of Quinovic Pukekohe |
| 7 Jul 2025 | SOLD | $618,000 | |
| 10 Jun 2025 | Rented | $500 | Priyanka Bhan of Harcourts Reforma, (Licensed: Reaa 2008) |
| 9 Apr 2025 | ASKING PRICE | $690,000 | Veena Singh of Bayleys Real Estate - Counties, (Licensed: Reaa 2008) |
| 12 Mar 2024 | Rented | $700 | Courtenay Clough of Harcourts Reforma, (Licensed: Reaa 2008) |
| 24 Feb 2023 | Rented | $680 | Courtenay Clough of Harcourts Reforma, (Licensed: Reaa 2008) |
| 14 Jul 2022 | ASKING PRICE | $825,000 | Varun Ragtah of Harcourts Papatoetoe (Licensed: Reaa 2008) |
| 15 Dec 2016 | SOLD | $510,000 | |
| 25 Nov 2011 | SOLD | $260,000 | |
| 27 Apr 2011 | ASKING PRICE | $289,000 | |
| 20 Nov 2008 | DEADLINE PRIVATE TREATY | $289,000 | Dayl Pirie of Harveys |
| 5 Jul 2008 | SOLD | $214,000 | Kathy Jenkins of Ray White Re |
| 15 Apr 2008 | DEADLINE PRIVATE TREATY | $277,000 | Kathy Jenkins of Ray White Re |
| 19 Nov 2007 | SOLD | $261,000 | |
| 12 Jan 1998 | SOLD | $157,000 | |
| 8 Jul 1996 | SOLD | $143,000 | |
| 3 May 1996 | SOLD | $115,000 | |
| 10 Apr 1996 | SOLD | $123,000 | |
| 5 Aug 1995 | SOLD | $110,000 | |
| 15 May 1994 | SOLD | $85,000 | |
| 19 Apr 1989 | SOLD | $85,000 | |
| 1 Jan 1930 | SOLD | $0 |
Lot 3 Deposited Plan 58293
There are no similar properties in the area that are listed for sale or recently sold.