
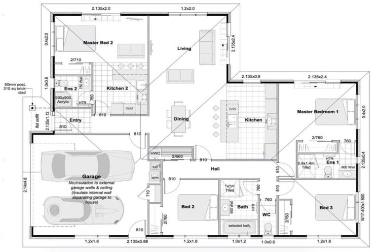
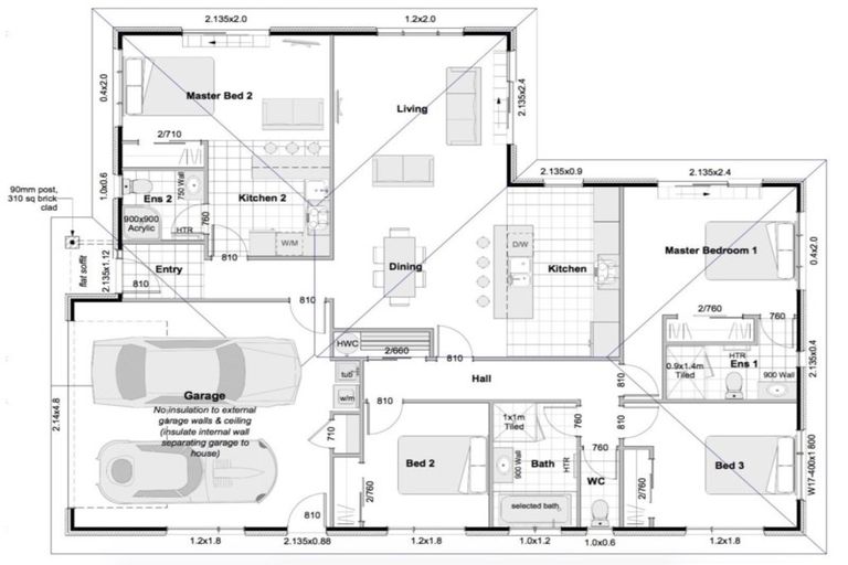
10a Campbell Place, Papakura, 2110 is a Residential property built in 2022 with 3 bedrooms, 2 bathrooms and 4 parking spaces. The property is estimated to be valued in the range of $1,000,000 to $1,100,000.
The property last sold on 28 October 2020 for $410,000. It took 36 days to sell. On 1 May 2024, 10a Campbell Place, Papakura, 2110 had a Rating Valuation with a Capital Value of $1,050,000, Land Value of $460,000 and Improvement Value of $590,000.
| Date | Type | Price | Agent/Agency |
|---|---|---|---|
| 28 Oct 2020 | SOLD | $410,000 | |
| 23 Sep 2020 | ASKING PRICE | $420,000 | |
| 21 May 2019 | ENQUIRIES OVER | $650,000 |
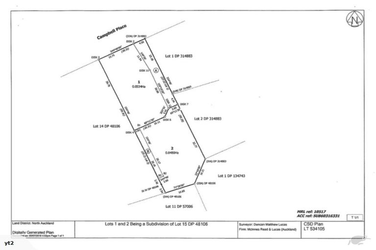
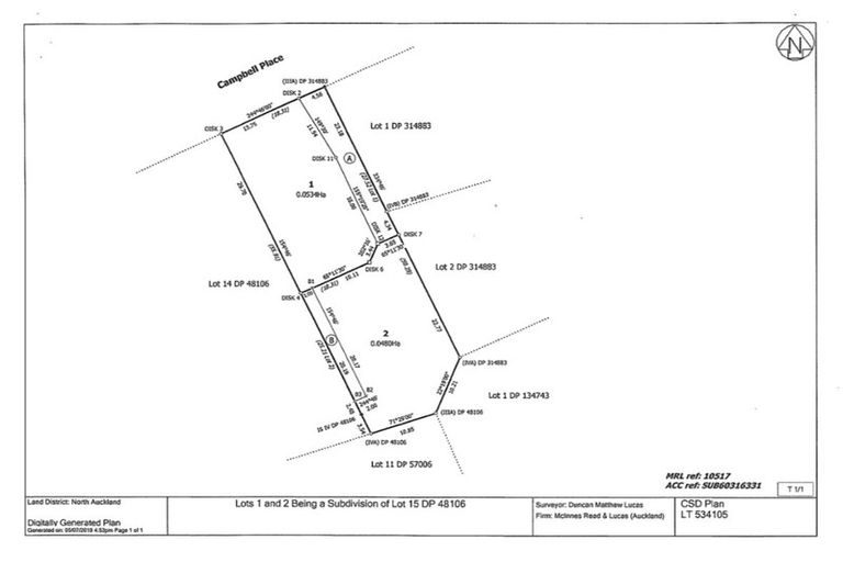
Lot 2 Deposited Plan 534105
There are no similar properties in the area that are listed for sale or recently sold.