
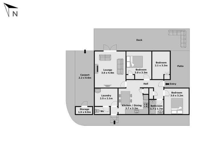
1/14 Prictor Street, Papakura, 2110 is a Residential property built in 1959 with 3 bedrooms, 1 bathroom and 2 parking spaces. The property is estimated to be valued in the range of $550,000 to $600,000.
The property last sold on 16 May 2019 for $475,000. It was sold by Ray White. On 1 May 2024, 1/14 Prictor Street, Papakura, 2110 had a Rating Valuation with a Capital Value of $610,000, Land Value of $400,000 and Improvement Value of $210,000.
| Date | Type | Price | Agent/Agency |
|---|---|---|---|
| 19 Mar 2026 | Rented | $695 | Karin Badrian of Point Property Management |
| 14 Apr 2024 | Rented | $680 | Karin Badrian of Point Property Management |
| 28 May 2019 | Rented | $520 | Office Reception of Stake Property Rentals Limited |
| 16 May 2019 | SOLD | $475,000 | |
| 24 Apr 2019 | ASKING PRICE | Price Not Disclosed | Garry Singh of Sue Douglas Property Services Limited Ray White, Takanini Licensed: Reaa 2008 |
| 12 Oct 2014 | SOLD | $366,000 | |
| 18 Mar 2014 | ASKING PRICE | Price Not Disclosed | Nelli Tagirova of Ray White Manurewa (Sue Douglas Property Services |
Principal Unit 1 Deposited Plan 458354
There are no similar properties in the area that are listed for sale or recently sold.