
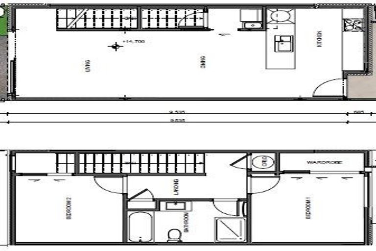
7 Matarau Road, Karaka, 2113 is a Residential property built in 2021 with 2 bedrooms, 1 bathroom and 0 parking spaces. The property is estimated to be valued in the range of $600,000 to $650,000.
The property last sold on 15 February 2021 for $650,000. It took 4 days to sell. On 1 May 2024, 7 Matarau Road, Karaka, 2113 had a Rating Valuation with a Capital Value of $660,000, Land Value of $330,000 and Improvement Value of $330,000.
| Date | Type | Price | Agent/Agency |
|---|---|---|---|
| 15 Feb 2021 | SOLD | $650,000 | |
| 12 Feb 2021 | ASKING PRICE | $650,000 |
Lot 6 Deposited Plan 545203
There are no similar properties in the area that are listed for sale or recently sold.