
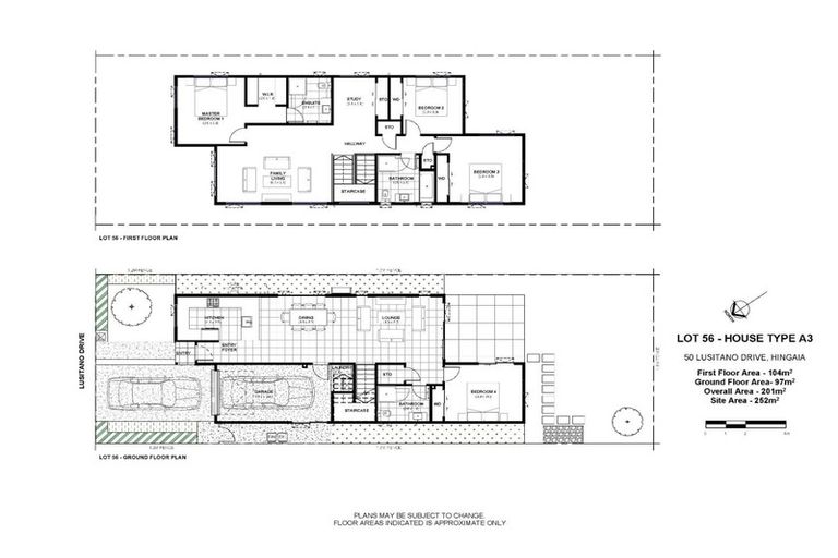
50 Lusitano Drive, Karaka, Papakura, 2113 is a Residential property built in 2021 with 4 bedrooms, 3 bathrooms and 3 parking spaces. The property is estimated to be valued in the range of $1,000,000 to $1,100,000.
The property last sold on 12 April 2021 for $1,065,000. On 1 May 2024, 50 Lusitano Drive, Karaka, Papakura, 2113 had a Rating Valuation with a Capital Value of $1,165,000, Land Value of $480,000 and Improvement Value of $685,000.
| Date | Type | Price | Agent/Agency |
|---|---|---|---|
| 9 Mar 2026 | Rented | $820 | Fahad Siddiqui of Harcourts Greenlane - Patras & Co Real Estate Ltd, (Licensed: Reaa 2008) |
| 21 Oct 2022 | Rented | $760 | Awais Rana of Harcourts Patras & Co |
| 12 Apr 2021 | SOLD | $1,065,000 |
Lot 56 Deposited Plan 526477
There are no similar properties in the area that are listed for sale or recently sold.