
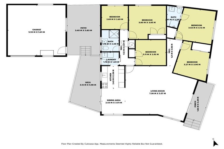
459 Weymouth Road, Weymouth, Auckland, 2103 is a Residential property built in 1983 with 5 bedrooms, 2 bathrooms and 0 parking spaces. The property is estimated to be valued in the range of $800,000 to $900,000.
The property last sold on 25 February 2025 for $824,000. It was sold by Hills Real Estate Limited, (Licensed: Reaa 2008), and took 1 days to sell. On 1 May 2024, 459 Weymouth Road, Weymouth, Auckland, 2103 had a Rating Valuation with a Capital Value of $830,000, Land Value of $550,000 and Improvement Value of $280,000.
| Date | Type | Price | Agent/Agency |
|---|---|---|---|
| 25 Feb 2025 | SOLD | $824,000 | Rickhil Prakash of Hills Real Estate Limited, (Licensed: Reaa 2008) |
| 13 Dec 2024 | BY NEGOTIATION | Price Not Disclosed | Rickhil Prakash of Hills Real Estate Limited, (Licensed: Reaa 2008) |
| 13 Dec 2024 | BY NEGOTIATION | Price Not Disclosed | Rickhil Prakash of Hills Real Estate Limited, (Licensed: Reaa 2008) |
| 8 Dec 2024 | SOLD | $710,652 | Rickhil Prakash of Hills Real Estate Limited, (Licensed: Reaa 2008) |
| 22 Nov 2024 | SOLD | $800,000 | |
| 14 Apr 2016 | SOLD | $675,000 | Garth Cutfield of Key2own Limited |
| 9 Dec 2015 | SOLD | $550,000 | Zarn Ha of Top One Real Estate Ltd Manukau |
| 19 Aug 2015 | ASKING PRICE | $678,000 | |
| 1 Aug 2011 | SOLD | $310,000 | |
| 20 Oct 2005 | SOLD | $233,000 | |
| 24 Jan 2004 | SOLD | $166,000 | |
| 19 Jan 1997 | SOLD | $145,000 | |
| 1 Mar 1990 | SOLD | $81,500 | |
| 30 May 1986 | SOLD | $55,000 | |
| 18 Jan 1984 | SOLD | $58,330 | |
| 1 Jan 1930 | SOLD | $0 |
Lot 8 Deposited Plan 99603
There are no similar properties in the area that are listed for sale or recently sold.