
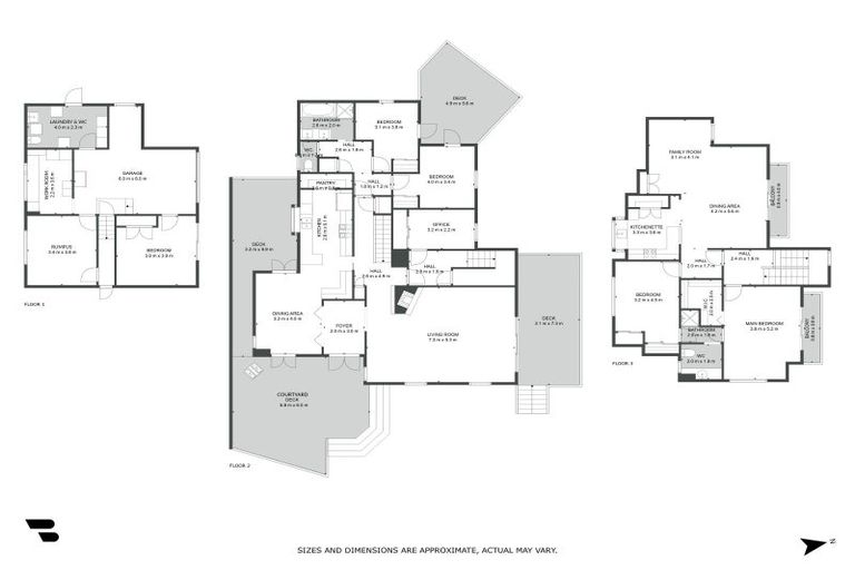
41 John Gill Road, Shelly Park, Auckland, 2014 is a Residential property built in 1975 with 5 bedrooms, 2 bathrooms and 2 parking spaces. The property is estimated to be valued in the range of $1,500,000 to $1,600,000.
The property last sold on 27 April 2006 for $735,000. It was sold by Profile Re, and took 50 days to sell. On 1 May 2024, 41 John Gill Road, Shelly Park, Auckland, 2014 had a Rating Valuation with a Capital Value of $1,575,000, Land Value of $910,000 and Improvement Value of $665,000.
| Date | Type | Price | Agent/Agency |
|---|---|---|---|
| 28 Mar 2023 | ASKING PRICE | $1,740,000 | Jeff Clayton of Bayleys Howick, (Licensed: Reaa 2008) |
| 27 Apr 2006 | SOLD | $735,000 | Clive Stanners of Profile Re |
| 9 Mar 2006 | DEADLINE PRIVATE TREATY | $770,000 | Clive Stanners of Profile Re |
Lot 58 Deposited Plan 75569
There are no similar properties in the area that are listed for sale or recently sold.