
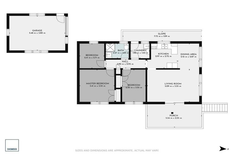
88 Hillcrest Road, Papatoetoe, Auckland, 2025 is a Residential property built in 1985 with 3 bedrooms, 1 bathroom and 1 parking space. The property is estimated to be valued in the range of $700,000 to $750,000.
It is unknown when the property was last sold or how much it was sold for. On 1 May 2024, 88 Hillcrest Road, Papatoetoe, Auckland, 2025 had a Rating Valuation with a Capital Value of $770,000, Land Value of $660,000 and Improvement Value of $110,000.
| Date | Type | Price | Agent/Agency |
|---|---|---|---|
| 7 Mar 2022 | BY NEGOTIATION | Price Not Disclosed | Leo Ramirez of Hills Real Estate Limited |
| 5 Oct 2021 | SOLD | $884,000 | |
| 10 Sep 2021 | UNKNOWN | Price Not Disclosed | Monika Maynard of Ray White Manukau (A T Realty Ltd) |
| 5 Dec 2018 | SOLD | $685,000 | Monika Maynard of A T Realty Ltd Ray White, Manukau City Licensed: Reaa 2008 |
| 7 Nov 2018 | BY NEGOTIATION | Price Not Disclosed | Monika Maynard of A T Realty Ltd Ray White, Manukau City Licensed: Reaa 2008 |
| 26 Jul 2016 | SOLD | $630,000 | |
| 18 Oct 2012 | SOLD | $335,000 | |
| 5 Nov 2011 | SOLD | $292,000 | |
| 2 Apr 2011 | ASKING PRICE | $309,000 | |
| 14 Mar 2008 | SOLD | $290,000 | |
| 22 Mar 2005 | SOLD | $237,000 | |
| 16 Nov 2004 | DEADLINE PRIVATE TREATY | $249,000 | Shelley of Law Re |
| 21 Nov 1987 | SOLD | $78,500 |
Lot 53 Deposited Plan 84416
There are no similar properties in the area that are listed for sale or recently sold.