1 of 13Mar 25
Loading...

6 Plymouth Place Papatoetoe, 2025


6 Plymouth Place , Papatoetoe, 2025
bed3
bathroom1
car2
land855 m2
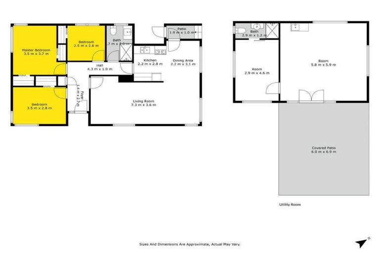
floor100 m2
Property Type
Residential
Year Built
1959
Last Sold on 17 Apr 2025 for $1,050,000
Settlement Date
03 Jun 2025
Sold By
Harcourts Tgb Group, (Licensed: Reaa 2008)
Settlement Date
03 Jun 2025
Sold By
Harcourts Tgb Group, (Licensed: Reaa 2008)

Estimated Value Range  


An estimate of value is not currently available for this property. There could be insufficient property information or recent sales data. The property could be out of scope (e.g. non-residential, highly unique, rural) or the estimate cannot be determined with high enough confidence.

About 6 Plymouth Place, Papatoetoe, Auckland, 2025

6 Plymouth Place, Papatoetoe, Auckland, 2025 is a Residential property built in 1959 with 3 bedrooms, 1 bathroom and 2 parking spaces. Due to insufficient data, the value of the property cannot be estimated.

The property last sold on 17 April 2025 for $1,050,000. It was sold by Harcourts Tgb Group, (Licensed: Reaa 2008), and took 37 days to sell. On 1 May 2024, 6 Plymouth Place, Papatoetoe, Auckland, 2025 had a Rating Valuation with a Capital Value of $1,300,000, Land Value of $1,225,000 and Improvement Value of $75,000.

Property History

DateTypePriceAgent/Agency
17 Apr 2025SOLD$1,050,000Ishan Sikka of Harcourts Tgb Group, (Licensed: Reaa 2008)
12 Mar 2025BY NEGOTIATIONPrice Not DisclosedPurva Parikh of Harcourts Tgb Group, (Licensed: Reaa 2008)
10 Oct 2024Rented$850Shirley Winiata of Papatoetoe Rentals & Property Management, (Licensed: Reaa 2008)
28 May 2024SOLD$1,310,000
19 Oct 2016SOLD$845,000
20 Sep 2016ASKING PRICE$899,000
15 Dec 1983SOLD$66,500
23 Dec 1981SOLD$50,500
1 Jan 1930SOLD$0
Present Day
17 Apr
2025
Sold for $1,050,000
11 months 18 days
Sold by Ishan Sikka of Harcourts Tgb Group, (Licensed: Reaa 2008)
12 Mar
2025
By Negotiation — Price Not Disclosed
Listed by Purva Parikh of Harcourts Tgb Group, (Licensed: Reaa 2008)
10 Oct
2024
Listed for Rent - Last price at $850 per week
Listed by Shirley Winiata of Papatoetoe Rentals & Property Management, (Licensed: Reaa 2008)
28 May
2024
Sold for $1,310,000
1 year 10 months 7 days
19 Oct
2016
Sold for $845,000
9 years 5 months 16 days
20 Sep
2016
Asking Price — $899,000
15 Dec
1983
Sold for $66,500
42 years 3 months 20 days
23 Dec
1981
Sold for $50,500
44 years 3 months 12 days
1959
Property Built
1 Jan
1930
Sold for $0
96 years 3 months 3 days

Commute Calculator

-
-
-
-

Rating Valuation

Capital Value
$1,300,000
Land Value
$1,225,000
Improvement Value
$75,000
Legal Description(s)

Lot 29 Deposited Plan 46107

Valuation Date
01-05-2024
Valuation Reference
2060/30900

Additional Information

Roof Construction
Steel/G-Iron
Zone
Residential Zone B, 9B
Units of Use
1
Wall Construction
Brick
Maori Land
No
Territorial Authority
Auckland - Manukau
Land Use
Single Unit excluding Bach

Suburb Insights

Comparable Properties

There are no similar properties in the area that are listed for sale or recently sold.