
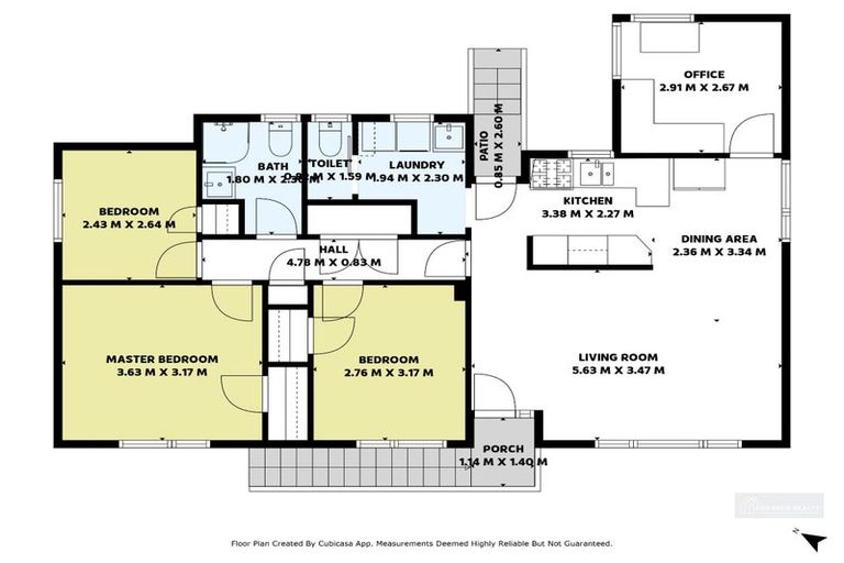
133 Hillside Road, Papatoetoe, Auckland, 2025 is a Residential property built in 1976 with 3 bedrooms, 1 bathroom and 1 parking space. The property is estimated to be valued in the range of $700,000 to $750,000.
The property last sold on 14 December 2008 for $283,000. It was sold by Ray White Sue Douglas Property, and took 139 days to sell. On 1 May 2024, 133 Hillside Road, Papatoetoe, Auckland, 2025 had a Rating Valuation with a Capital Value of $770,000, Land Value of $710,000 and Improvement Value of $60,000.
| Date | Type | Price | Agent/Agency |
|---|---|---|---|
| 18 Jun 2025 | ASKING PRICE | $889,000 | Raksha Lakhan of Ray White Manukau (A T Realty Ltd), (Licensed: Reaa 2008) |
| 24 Dec 2024 | BY NEGOTIATION | Price Not Disclosed | Sudesh Kumar of Emerald Realty, (Licensed: Reaa 2008) |
| 19 Apr 2016 | ASKING PRICE | Price Not Disclosed | Grace Wong of Pakuranga & Howick Realty Ltd Mreinz |
| 14 Dec 2008 | SOLD | $283,000 | Monty Dsor of Ray White Sue Douglas Property |
| 29 Jul 2008 | AUCTION | Price Not Disclosed | Monty Dsor of Ray White Sue Douglas Property |
| 13 Mar 2008 | SOLD | $290,000 | |
| 10 Sep 1998 | SOLD | $145,000 | |
| 27 Oct 1994 | SOLD | $110,000 | |
| 1 Jan 1930 | SOLD | $0 |
Lot 130 Deposited Plan 76806
There are no similar properties in the area that are listed for sale or recently sold.