
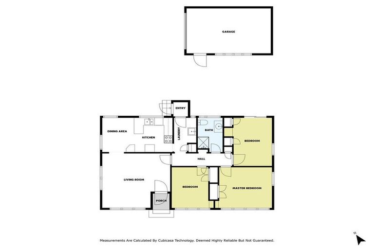
1/12 Philip Street, Papatoetoe, Auckland, 2025 is a Residential property built in 1955 with 3 bedrooms, 1 bathroom and 1 parking space. The property is estimated to be valued in the range of $750,000 to $800,000.
The property last sold on 2 September 2023 for $825,000. It was sold by Harcourts Flat Bush - Hoverd & Co, (Licensed: Reaa 2008), and took 29 days to sell. On 1 May 2024, 1/12 Philip Street, Papatoetoe, Auckland, 2025 had a Rating Valuation with a Capital Value of $820,000, Land Value of $510,000 and Improvement Value of $310,000.
| Date | Type | Price | Agent/Agency |
|---|---|---|---|
| 2 Sep 2023 | SOLD | $825,000 | |
| 5 Aug 2023 | AUCTION | Price Not Disclosed | Nitin Verma of Harcourts Flat Bush - Hoverd & Co, (Licensed: Reaa 2008) |
| 19 Nov 2004 | SOLD | $272,000 | |
| 29 Oct 2003 | SOLD | $211,199 | |
| 18 Dec 1987 | SOLD | $27,000 |
Lot 5 Deposited Plan 39916
There are no similar properties in the area that are listed for sale or recently sold.