
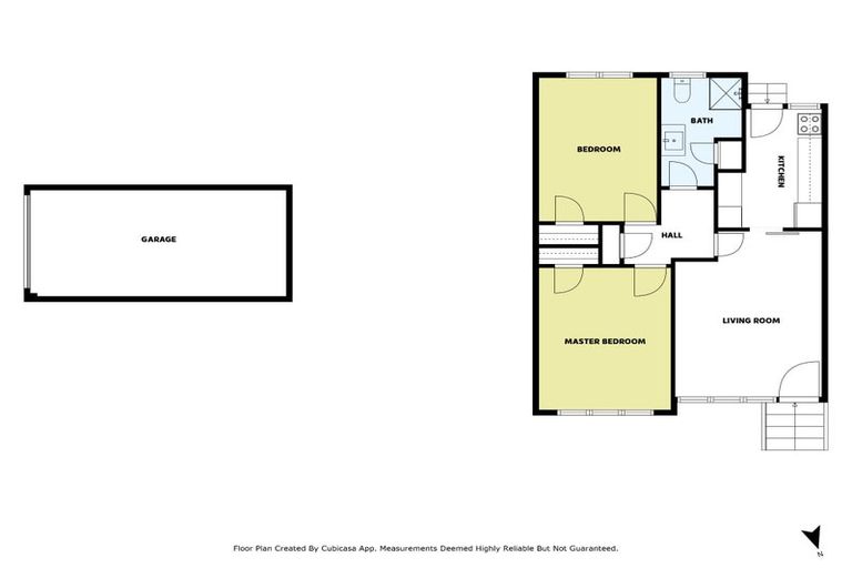
2/39 Udys Road, Pakuranga, Auckland, 2010 is a Residential property built in 1965 with 2 bedrooms, 1 bathroom and 1 parking space. The property is estimated to be valued in the range of $700,000 to $750,000.
The property last sold on 9 March 2021 for $695,000. It was sold by Harcourts. On 1 May 2024, 2/39 Udys Road, Pakuranga, Auckland, 2010 had a Rating Valuation with a Capital Value of $760,000, Land Value of $600,000 and Improvement Value of $160,000.
| Date | Type | Price | Agent/Agency |
|---|---|---|---|
| 11 Oct 2024 | Rented | $550 | Victoria Lee of Street Smart Property Management Ltd |
| 31 Jul 2024 | BY NEGOTIATION | Price Not Disclosed | Ravi Singh of Ray White Howick (Five AM Realty Ltd), (Licensed: Reaa 2008) |
| 12 May 2021 | Rented | $520 | Self-Management Software of Myrent.Co.NZ Ltd |
| 9 Mar 2021 | SOLD | $695,000 | |
| 26 Jan 2021 | BY NEGOTIATION | Price Not Disclosed | Suresh Rrk of Crystal Realty Limited, (Licensed: Reaa 2008) |
| 30 Nov 2019 | Rented | $445 | |
| 29 Apr 2007 | SOLD | $315,000 | |
| 8 Nov 2006 | SOLD | $277,000 | Sue of Barfoot & Thompson |
| 12 Oct 2006 | DEADLINE PRIVATE TREATY | $289,000 | Sue of Barfoot & Thompson |
| 7 Oct 2005 | SOLD | $282,000 | |
| 11 Mar 2004 | SOLD | $230,000 | |
| 16 Oct 2003 | SOLD | $600,000 |
Unit B and Accessory Unit 3 Deposited Plan 202109
There are no similar properties in the area that are listed for sale or recently sold.