
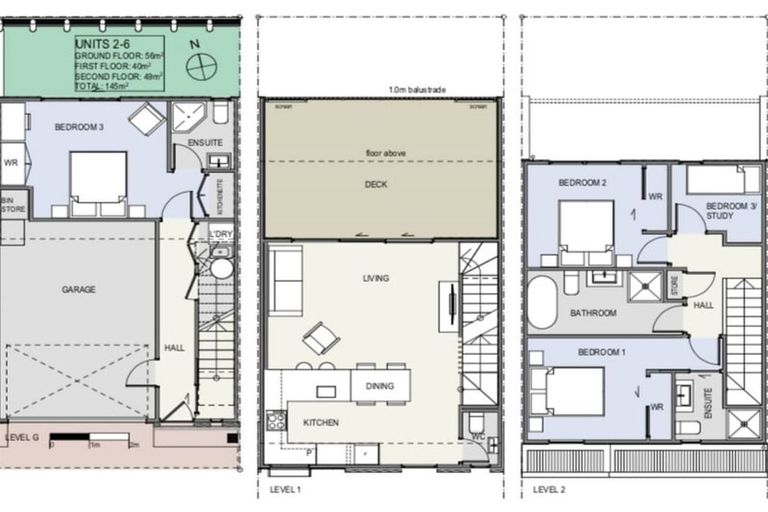
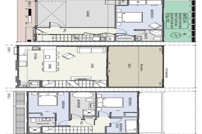
2/11 Lewis Road, Pakuranga, Auckland, 2010 is a Residential property built in 2010 with 0 bedrooms, 4 bathrooms and 1 parking space. The property is estimated to be valued in the range of $800,000 to $900,000.
It is unknown when the property was last sold or how much it was sold for. On 1 May 2024, 2/11 Lewis Road, Pakuranga, Auckland, 2010 had a Rating Valuation with a Capital Value of $950,000, Land Value of $390,000 and Improvement Value of $560,000.
| Date | Type | Price | Agent/Agency |
|---|---|---|---|
| 7 Mar 2024 | Rented | $850 | |
| 30 Nov 2023 | Rented | $850 |
Lot 8 Deposited Plan 559716
There are no similar properties in the area that are listed for sale or recently sold.