
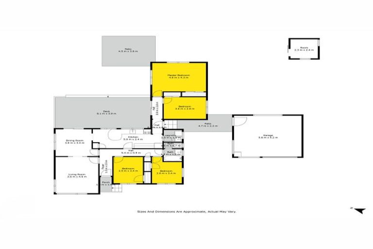
22 Carbery Place, Manurewa, Auckland, 2102 is a Residential property built in 1973 with 4 bedrooms, 1 bathroom and 1 parking space. The property is estimated to be valued in the range of $750,000 to $800,000.
The property last sold on 24 July 2024 for $820,000. It was sold by Proventus Group Ltd T/A Vantage Realty, (Licensed: Reaa 2008), and took 24 days to sell. On 1 May 2024, 22 Carbery Place, Manurewa, Auckland, 2102 had a Rating Valuation with a Capital Value of $800,000, Land Value of $710,000 and Improvement Value of $90,000.
| Date | Type | Price | Agent/Agency |
|---|---|---|---|
| 24 Jul 2024 | SOLD | $820,000 | |
| 1 Jul 2024 | BY NEGOTIATION | Price Not Disclosed | Stephanie Kelland of Proventus Group Ltd T/A Vantage Realty, (Licensed: Reaa 2008) |
| 8 Feb 2020 | Rented | $550 | |
| 2 Jan 1996 | SOLD | $90,000 |
Lot 135 Deposited Plan 69210
There are no similar properties in the area that are listed for sale or recently sold.