
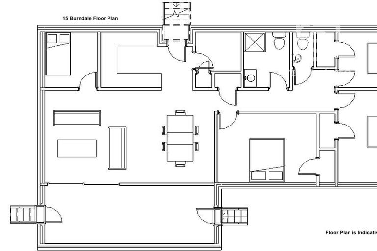
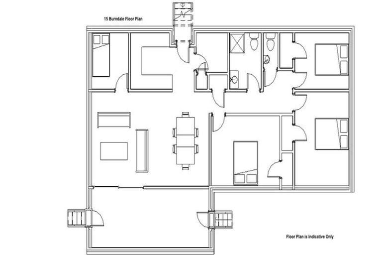
15 Burndale Terrace, Manurewa, Auckland, 2102 is a Residential property built in 1970 with 4 bedrooms, 1 bathroom and 2 parking spaces. The property is estimated to be valued in the range of $750,000 to $800,000.
The property last sold on 2 October 2025 for an unknown price. It was sold by Hills Real Estate Limited. On 1 May 2024, 15 Burndale Terrace, Manurewa, Auckland, 2102 had a Rating Valuation with a Capital Value of $770,000, Land Value of $590,000 and Improvement Value of $180,000.
| Date | Type | Price | Agent/Agency |
|---|---|---|---|
| 2 Oct 2025 | $0 | Pending Settlement Advice | |
| 23 Jul 2025 | $0 | Pending Settlement Advice | |
| 3 Apr 2025 | SOLD | $756,522 | |
| 3 Apr 2025 | SOLD | $756,522 | |
| 11 Mar 2025 | BY NEGOTIATION | Price Not Disclosed | Rahul Behl of Hills Real Estate Limited, (Licensed: Reaa 2008) |
| 11 Mar 2025 | BY NEGOTIATION | Price Not Disclosed | Rahul Behl of Hills Real Estate Limited, (Licensed: Reaa 2008) |
| 5 Feb 2025 | SOLD | $750,000 | |
| 8 Feb 2022 | Rented | $550 | Jennifer Stapleton of Harveys Papakura - Southern Suburbs Realty Ltd Mreinz, (Licensed: Reaa 2008) |
| 4 Nov 2020 | Rented | $520 | Jennifer Stapleton of Wise Property Management Ltd |
| 18 Jan 2019 | Rented | $500 | Jo Dartnall of Wise Property Management Ltd |
| 22 May 1995 | SOLD | $130,000 | |
| 15 Feb 1990 | SOLD | $110,000 | |
| 1 Jan 1930 | SOLD | $0 |
Lot 11 Deposited Plan 60951
There are no similar properties in the area that are listed for sale or recently sold.