
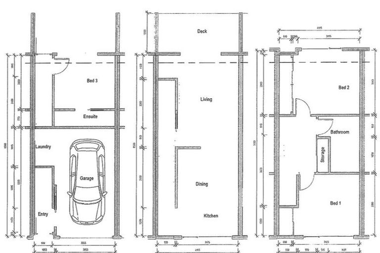
11 Marumaru Lane, Manurewa, Auckland, 2102 is a Residential property built in 2021 with 3 bedrooms, 2 bathrooms and 1 parking space. The property is estimated to be valued in the range of $600,000 to $650,000.
The property last sold on 20 September 2019 for $620,000. On 1 May 2024, 11 Marumaru Lane, Manurewa, Auckland, 2102 had a Rating Valuation with a Capital Value of $660,000, Land Value of $320,000 and Improvement Value of $340,000.
| Date | Type | Price | Agent/Agency |
|---|---|---|---|
| 26 Oct 2021 | Rented | $680 | Kumar Yadav of Oaks Property Management |
| 20 Sep 2019 | SOLD | $620,000 |
Lot 100 Deposited Plan 549177
There are no similar properties in the area that are listed for sale or recently sold.