
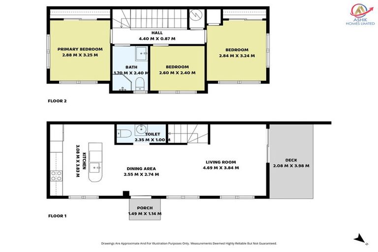
26a Cape Road, Mangere, Auckland, 2022 is a Residential property built in 2025 with 2 bedrooms, 2 bathrooms and 0 parking spaces. The property is estimated to be valued in the range of $650,000 to $700,000.
The property last sold on 7 November 2024 for $2,852,180. On 1 May 2024, 26a Cape Road, Mangere, Auckland, 2022 had a Rating Valuation with a Capital Value of $640,000, Land Value of $270,000 and Improvement Value of $370,000.
| Date | Type | Price | Agent/Agency |
|---|---|---|---|
| 9 Dec 2025 | ENQUIRIES OVER | $700,000 | Pawan J Prabhhakar of Harcourts The Gardens New Age Realty |
| 7 Nov 2024 | SOLD | $2,852,180 |
Lot 1 Deposited Plan 611612
There are no similar properties in the area that are listed for sale or recently sold.