
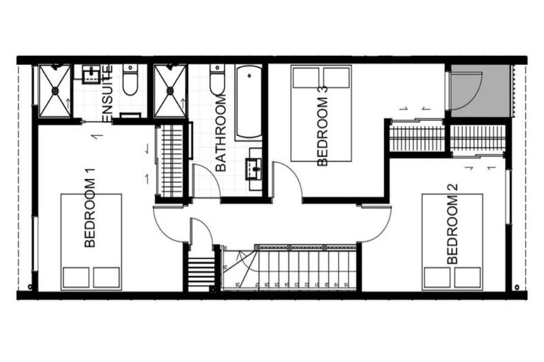
9 Bonnette Road, Flat Bush, Auckland, 2019 is a Residential property built in 2018 with 4 bedrooms, 3 bathrooms and 1 parking space. The property is estimated to be valued in the range of $900,000 to $1,000,000.
The property last sold on 28 April 2021 for $1,080,000. It was sold by Barfoot & Thompson. On 1 May 2024, 9 Bonnette Road, Flat Bush, Auckland, 2019 had a Rating Valuation with a Capital Value of $960,000, Land Value of $520,000 and Improvement Value of $440,000.
| Date | Type | Price | Agent/Agency |
|---|---|---|---|
| 18 Mar 2025 | Rented | $790 | Karl Jackson of Pukeko Rental Managers Pakuranga |
| 31 Dec 2023 | Rented | $850 | Karl Jackson of Pukeko Rental Managers Pakuranga |
| 28 Apr 2021 | SOLD | $1,080,000 | |
| 10 Sep 2019 | SOLD | $915,000 | |
| 18 Jun 2019 | ASKING PRICE | $929,000 | Mee Lei Or Tian Tian of Fletcher Living Auckland South |
Lot 35 Deposited Plan 518124
There are no similar properties in the area that are listed for sale or recently sold.