
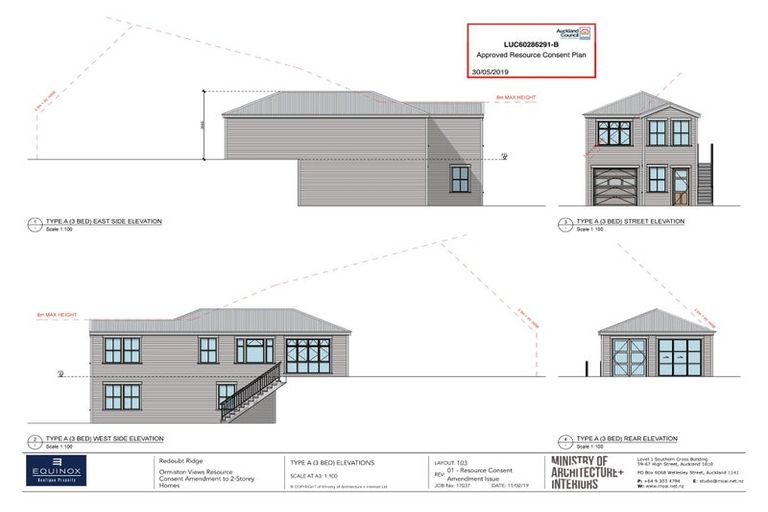
61 Joseph Street, Flat Bush, Auckland, 2019 is a Residential property built in 2025 with 3 bedrooms, 1 bathroom and 1 parking space. The property is estimated to be valued in the range of $800,000 to $900,000.
The property last sold on 24 February 2026 for $865,000. On 1 May 2024, 61 Joseph Street, Flat Bush, Auckland, 2019 had a Rating Valuation with a Capital Value of $980,000, Land Value of $440,000 and Improvement Value of $540,000.
| Date | Type | Price | Agent/Agency |
|---|---|---|---|
| 24 Feb 2026 | SOLD | $865,000 | |
| 16 Dec 2025 | SOLD | $782,608 | |
| 23 Mar 2018 | ASKING PRICE | $469,000 | Mandeep (Kaur) Bajwa of Harcourts Papakura |
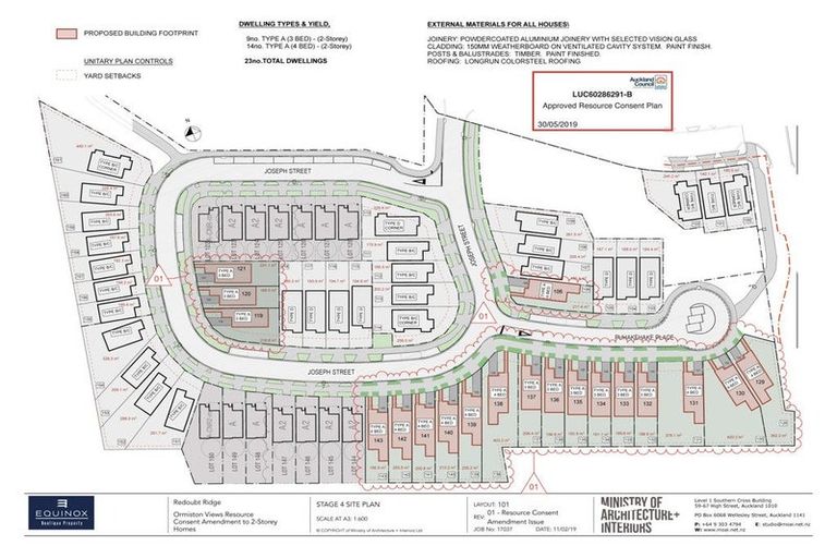
Lot 120 Deposited Plan 508662
There are no similar properties in the area that are listed for sale or recently sold.