
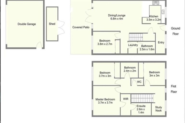
48 Pencaitland Drive, Flat Bush, Auckland, 2019 is a Residential property built in 2014 with 4 bedrooms, 3 bathrooms and 2 parking spaces. The property is estimated to be valued in the range of $900,000 to $1,000,000.
The property last sold on 20 March 2021 for $1,110,000. It was sold by Harcourts. On 1 May 2024, 48 Pencaitland Drive, Flat Bush, Auckland, 2019 had a Rating Valuation with a Capital Value of $1,000,000, Land Value of $630,000 and Improvement Value of $370,000.
| Date | Type | Price | Agent/Agency |
|---|---|---|---|
| 9 Oct 2021 | Rented | $800 | Gillian Song of Aspire Property Management |
| 20 Mar 2021 | SOLD | $1,110,000 | |
| 23 Feb 2021 | AUCTION | Price Not Disclosed | Cherie Brice of Harcourts Howick |
| 28 Apr 2016 | SOLD | $880,000 | |
| 13 Aug 2015 | SOLD | $407,000 |
Lot 40 Deposited Plan 477001
There are no similar properties in the area that are listed for sale or recently sold.