
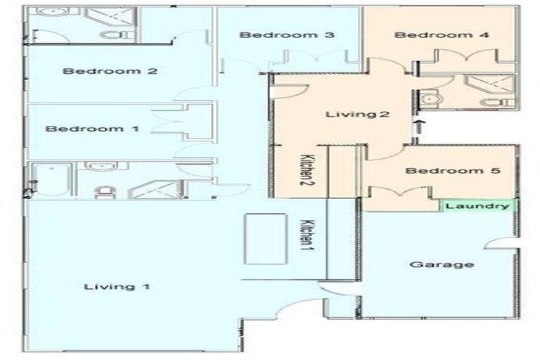
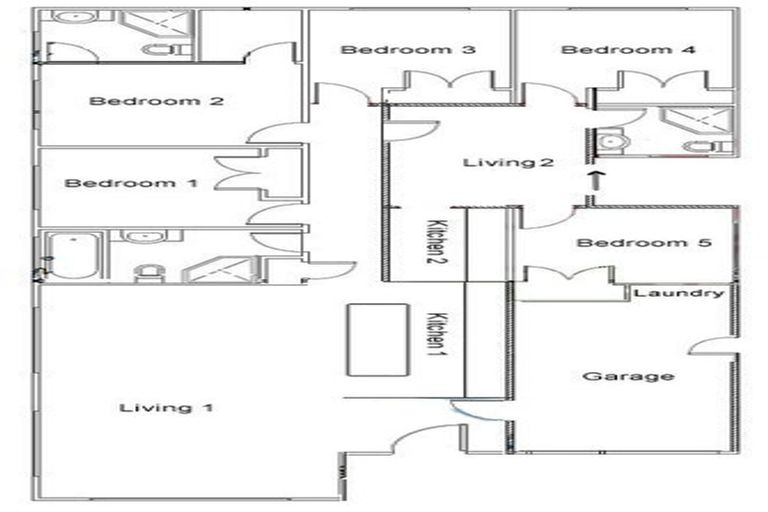
29 Cloonlyon Drive, Flat Bush, Auckland, 2019 is a Residential property built in 2022 with 3 bedrooms, 3 bathrooms and 1 parking space. The property is estimated to be valued in the range of $1,100,000 to $1,200,000.
The property last sold on 13 April 2023 for $1,247,000. On 1 May 2024, 29 Cloonlyon Drive, Flat Bush, Auckland, 2019 had a Rating Valuation with a Capital Value of $1,220,000, Land Value of $710,000 and Improvement Value of $510,000.
| Date | Type | Price | Agent/Agency |
|---|---|---|---|
| 5 Mar 2026 | Rented | $960 | Nicola of Younan Property |
| 29 Jan 2025 | Rented | $550 | |
| 27 May 2024 | Rented | $580 | |
| 31 May 2023 | Rented | $580 | |
| 13 Apr 2023 | SOLD | $1,247,000 |
Lot 58 Deposited Plan 552810
There are no similar properties in the area that are listed for sale or recently sold.