
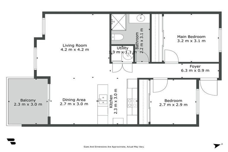
25/124 Stancombe Road, Flat Bush, Auckland, 2016 is a Residential property built in 2006 with 2 bedrooms, 1 bathroom and 2 parking spaces. The property is estimated to be valued in the range of $400,000 to $450,000.
It is unknown when the property was last sold or how much it was sold for. On 1 May 2024, 25/124 Stancombe Road, Flat Bush, Auckland, 2016 had a Rating Valuation with a Capital Value of $480,000, Land Value of $220,000 and Improvement Value of $260,000.
| Date | Type | Price | Agent/Agency |
|---|---|---|---|
| 9 Apr 2024 | Rented | $600 | The Rent Shop Papakura of The Rent Shop Ltd |
| 15 Mar 2024 | ASKING PRICE | $520,000 | |
| 28 Aug 2023 | BY NEGOTIATION | Price Not Disclosed | Sunny Gumber of Mike Pero Real Estate - Flat Bush, (Licensed: Reaa 2008) |
| 25 Nov 2016 | SOLD | $560,000 | |
| 3 Aug 2007 | SOLD | $359,000 |
Unit 25 and Accessory Unit 75 Deposited Plan 362260
There are no similar properties in the area that are listed for sale or recently sold.