
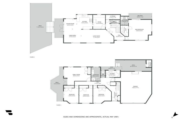
45 Cockle Road, Cockle Bay, Auckland, 2014 is a Residential property built in 1997 with 4 bedrooms, 2 bathrooms and 2 parking spaces. The property is estimated to be valued in the range of $1,600,000 to $1,800,000.
The property last sold on 12 December 2023 for $1,770,000. It was sold by Bayleys. On 1 May 2024, 45 Cockle Road, Cockle Bay, Auckland, 2014 had a Rating Valuation with a Capital Value of $1,675,000, Land Value of $740,000 and Improvement Value of $935,000.
| Date | Type | Price | Agent/Agency |
|---|---|---|---|
| 12 Dec 2023 | SOLD | $1,770,000 | |
| 16 Nov 2023 | AUCTION | Price Not Disclosed | Sonya Bryans of Bayleys Howick, (Licensed: Reaa 2008) |
| 2 Feb 2011 | SOLD | $579,000 |
Lot 1 Deposited Plan 118674
There are no similar properties in the area that are listed for sale or recently sold.