
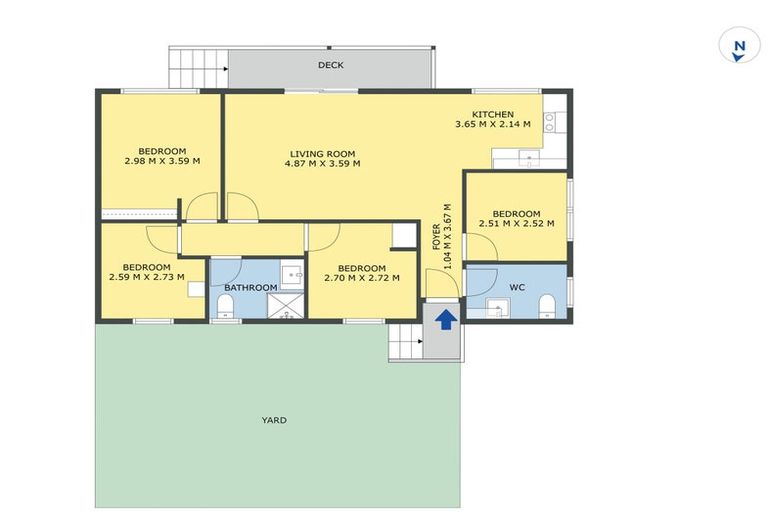
3 Palermo Place, Clover Park, Auckland, 2023 is a Residential property built in 1983 with 4 bedrooms, 1 bathroom and 0 parking spaces. The property is estimated to be valued in the range of $750,000 to $800,000.
The property last sold on 19 July 2024 for $800,000. It was sold by Harcourts United, (Licensed: Reaa 2008), and took 23 days to sell. On 1 May 2024, 3 Palermo Place, Clover Park, Auckland, 2023 had a Rating Valuation with a Capital Value of $820,000, Land Value of $620,000 and Improvement Value of $200,000.
| Date | Type | Price | Agent/Agency |
|---|---|---|---|
| 19 Aug 2025 | Rented | $700 | Anuj Khattri of A Cube Rentals Ltd |
| 19 Jul 2024 | SOLD | $800,000 | |
| 27 Jun 2024 | BY NEGOTIATION | Price Not Disclosed | Sherry Gill of Harcourts United, (Licensed: Reaa 2008) |
| 23 Dec 2022 | Rented | $650 | Reggie Zhang of Anemax Property Management Ltd |
| 16 Oct 2021 | Rented | $650 | Reggie of Anemax Property Management Ltd |
| 27 Apr 2021 | SOLD | $750,000 | |
| 6 Sep 2013 | SOLD | $338,500 | |
| 7 Apr 2012 | ASKING PRICE | $289,000 | Tony Tony of For More Info About Homesell Ltd - The Private Sa |
| 18 Aug 2011 | DEADLINE PRIVATE TREATY | $289,000 | Jitender Setia of Barfoot & Thompson Dannemora |
| 30 Apr 2008 | ASKING PRICE | $284,500 | The Owner of Homesell |
| 26 Dec 2007 | SOLD | $247,000 | |
| 29 Oct 1997 | SOLD | $130,000 | |
| 2 Oct 1987 | SOLD | $69,000 |
Lot 198 Deposited Plan 98763
There are no similar properties in the area that are listed for sale or recently sold.