
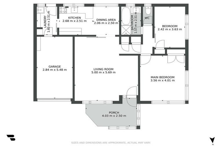
1/52 Galsworthy Place, Bucklands Beach, Auckland, 2014 is a Residential property built in 1973 with 2 bedrooms, 1 bathroom and 1 parking space. The property is estimated to be valued in the range of $900,000 to $1,000,000.
It is unknown when the property was last sold or how much it was sold for. On 1 May 2024, 1/52 Galsworthy Place, Bucklands Beach, Auckland, 2014 had a Rating Valuation with a Capital Value of $1,050,000, Land Value of $950,000 and Improvement Value of $100,000.
| Date | Type | Price | Agent/Agency |
|---|---|---|---|
| 25 Sep 2025 | Rented | $650 | Myrent.Co.Nz of Myrent.Co.NZ Ltd |
| 19 Jun 2023 | Rented | $680 | Myrent.Co.Nz of Myrent.Co.NZ Ltd |
| 19 Feb 2022 | Rented | $650 | Myrent.Co.Nz of Myrent.Co.NZ Ltd |
| 26 Jul 1998 | SOLD | $195,000 |
Lot 239 Deposited Plan 62065
There are no similar properties in the area that are listed for sale or recently sold.