
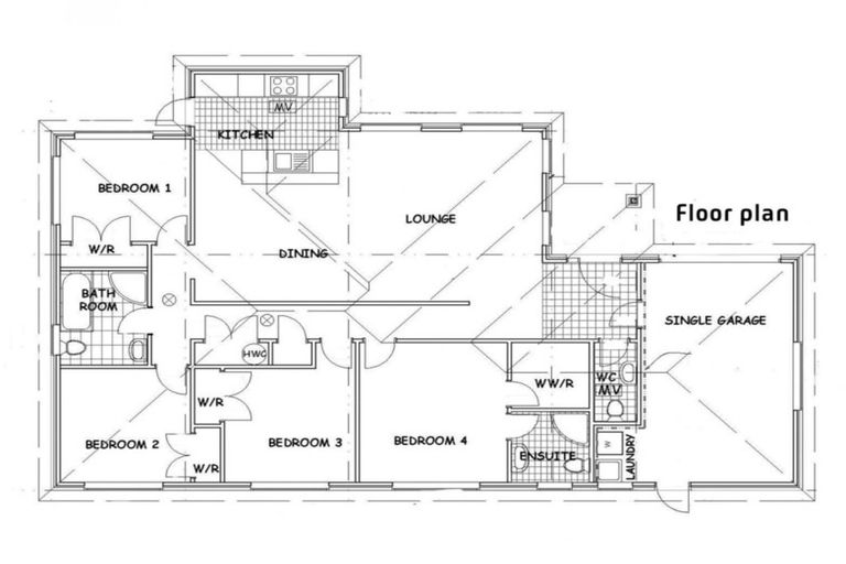
31a Tasman Street, Pukekohe, 2120 is a Residential property built in 2021 with 4 bedrooms, 2 bathrooms and 2 parking spaces. The property is estimated to be valued in the range of $700,000 to $750,000.
The property last sold on 21 March 2020 for $645,000. On 1 May 2024, 31a Tasman Street, Pukekohe, 2120 had a Rating Valuation with a Capital Value of $760,000, Land Value of $340,000 and Improvement Value of $420,000.
| Date | Type | Price | Agent/Agency |
|---|---|---|---|
| 21 Mar 2020 | SOLD | $645,000 | |
| 4 Sep 2019 | ASKING PRICE | $639,000 | Baljit Singh Duhra of Barfoot & Thompson Ltd Manukau Licensed: Reaa 2008 |
| 25 Sep 2018 | ASKING PRICE | $620,000 | Zail (Singh) Badhan of Professionals Pukekohe (Osborne Realty), Licensed Agent (Reaa 2008) |
| 28 Jun 2018 | BY NEGOTIATION | Price Not Disclosed | Zail Badhan of Property Link Groups Ltd Professionals, Pukekohe Licensed: Reaa 2008 |
| 10 May 2017 | SOLD | $260,000 |
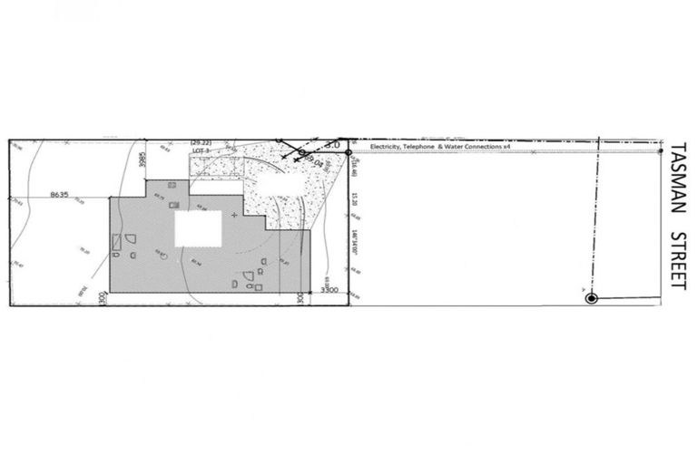
Lot 3 Deposited Plan 510202
There are no similar properties in the area that are listed for sale or recently sold.