
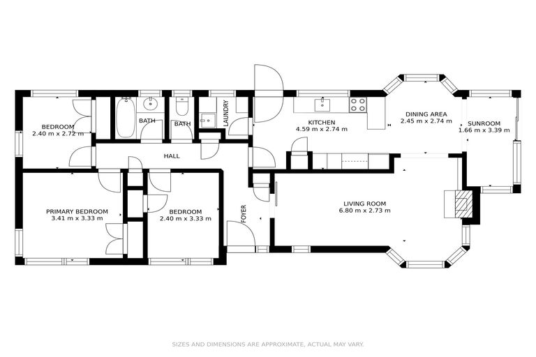
19 Paterson Avenue, Pukekohe, 2120 is a Residential property built in 1963 with 3 bedrooms, 1 bathroom and 5 parking spaces. The property is estimated to be valued in the range of $700,000 to $750,000.
The property last sold on 11 November 2021 for $895,000. On 1 May 2024, 19 Paterson Avenue, Pukekohe, 2120 had a Rating Valuation with a Capital Value of $790,000, Land Value of $700,000 and Improvement Value of $90,000.
| Date | Type | Price | Agent/Agency |
|---|---|---|---|
| 2 Feb 2022 | ASKING PRICE | Price Not Disclosed | Lj Hooker Drury of LJ Hooker Drury |
| 11 Nov 2021 | SOLD | $895,000 | |
| 19 Jul 2021 | ENQUIRIES OVER | $899,000 | Christine Montagna of Ray White Drury |
| 24 Mar 1998 | SOLD | $177,000 | |
| 23 Dec 1997 | SOLD | $180,000 | |
| 9 Oct 1990 | SOLD | $113,000 | |
| 7 Jun 1985 | SOLD | $64,000 |
Lot 7 Deposited Plan 50133
There are no similar properties in the area that are listed for sale or recently sold.