
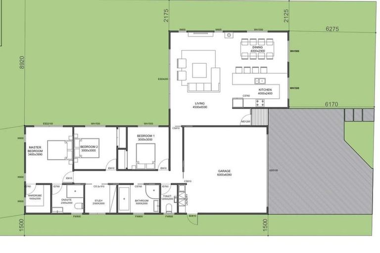
35 Tahuna Minhinnick Drive, Glenbrook, 2681 is a Residential property built in 2020 with 3 bedrooms, 2 bathrooms and 2 parking spaces. The property is estimated to be valued in the range of $800,000 to $900,000.
The property last sold on 10 June 2020 for $270,000. On 1 May 2024, 35 Tahuna Minhinnick Drive, Glenbrook, 2681 had a Rating Valuation with a Capital Value of $900,000, Land Value of $370,000 and Improvement Value of $530,000.
| Date | Type | Price | Agent/Agency |
|---|---|---|---|
| 24 Feb 2026 | ENQUIRIES OVER | $849,000 | Kerryn of Listed.Co.NZ |
| 10 Jun 2020 | SOLD | $270,000 |
Lot 30 Deposited Plan 519578
There are no similar properties in the area that are listed for sale or recently sold.