
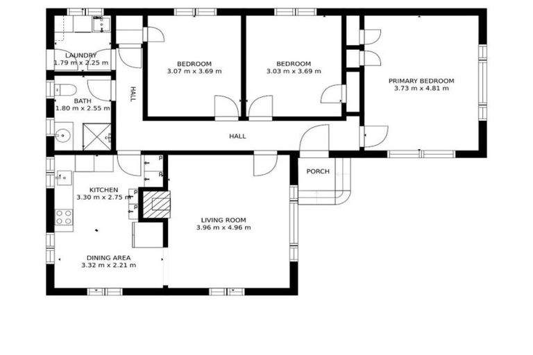
524 Buckland Road, Buckland, Pukekohe, 2677 is a Residential property built in 1955 with 3 bedrooms, 1 bathroom and 2 parking spaces. The property is estimated to be valued in the range of $650,000 to $700,000.
The property last sold on 10 February 2026 for $710,000. It was sold by Bayleys Pukekohe, (Licensed: Reaa 2008), and took 21 days to sell. On 1 May 2024, 524 Buckland Road, Buckland, Pukekohe, 2677 had a Rating Valuation with a Capital Value of $720,000, Land Value of $310,000 and Improvement Value of $410,000.
| Date | Type | Price | Agent/Agency |
|---|---|---|---|
| 10 Feb 2026 | SOLD | $710,000 | |
| 21 Jan 2026 | BY NEGOTIATION | Price Not Disclosed | Michele Mathieson of Bayleys Pukekohe, (Licensed: Reaa 2008) |
| 11 Dec 2021 | SOLD | $900,000 | Christine Montagna of Cfm Property Services Limited (Licensed: Reaa 2008) - Ray White Tuakau |
| 10 Dec 2021 | PRICE ON APPLICATION | Price Not Disclosed | Christine Montagna of Cfm Property Services Limited (Licensed: Reaa 2008) - Ray White Tuakau |
| 25 Apr 2019 | SOLD | $590,000 | |
| 4 Apr 2019 | ASKING PRICE | $625,000 | |
| 14 Jul 2016 | SOLD | $525,000 | |
| 5 Jul 2016 | ASKING PRICE | $535,000 | Lisa Walden of Re/Max Zest |
| 2 Jun 2015 | SOLD | $490,000 | Elizabeth Du Plessis of Barfoot & Thompson Ltd Pukekohe |
| 27 May 2015 | ASKING PRICE | Price Not Disclosed | Elizabeth Du Plessis of Barfoot & Thompson Ltd Pukekohe |
| 1 Jun 2007 | SOLD | $354,983 | |
| 26 Mar 2004 | SOLD | $208,000 | |
| 14 Oct 2000 | SOLD | $175,000 | |
| 3 Oct 1997 | SOLD | $161,000 | |
| 3 Oct 1996 | SOLD | $130,000 |
Lot 1 Deposited Plan 447758
There are no similar properties in the area that are listed for sale or recently sold.