
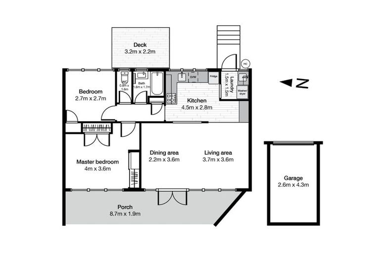
3/9 Tawa Road, Onehunga, Auckland, 1061 is a Residential property built in 1960 with 2 bedrooms, 1 bathroom and 2 parking spaces. The property is estimated to be valued in the range of $800,000 to $900,000.
The property last sold on 6 March 2025 for $920,000. It took 22 days to sell. On 1 May 2024, 3/9 Tawa Road, Onehunga, Auckland, 1061 had a Rating Valuation with a Capital Value of $830,000, Land Value of $590,000 and Improvement Value of $240,000.
| Date | Type | Price | Agent/Agency |
|---|---|---|---|
| 6 Mar 2025 | SOLD | $920,000 | |
| 13 Feb 2025 | BY NEGOTIATION | Price Not Disclosed | |
| 9 Apr 2024 | SOLD | $840,000 | |
| 9 Apr 2024 | SOLD | $840,000 | |
| 9 Jan 2019 | ASKING PRICE | Price Not Disclosed | Antonia Baker of The Property Market Ltd (Licensed: Reaa 2008) |
| 3 Jun 2015 | SOLD | $719,000 | Lindy Lawton of LJ Hooker Auckland Central - Clear Realty Ltd |
| 11 May 2015 | AUCTION | Price Not Disclosed | Lindy Lawton of LJ Hooker Auckland Central - Clear Realty Ltd |
| 24 Mar 2011 | SOLD | $380,000 | Kim Rule of Barfoot & Thompson |
| 16 Mar 2011 | ASKING PRICE | Price Not Disclosed | Kim Rule of Barfoot & Thompson |
| 17 Jul 2008 | DEADLINE PRIVATE TREATY | $369,000 | Phylilis Brooks of Barfoot & Thompson |
| 7 Nov 2001 | SOLD | $174,000 |
Carport 3 Deposited Plan 52384
There are no similar properties in the area that are listed for sale or recently sold.