
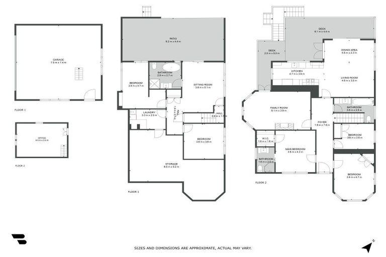
123 Crummer Road, Grey Lynn, Auckland, 1021 is a Residential property built in 1910 with 5 bedrooms, 3 bathrooms and 0 parking spaces. The property is estimated to be valued in the range of $3,000,000 to $3,250,000.
The property last sold on 6 March 2024 for $3,325,000. It was sold by Kellands Real Estate Limited, (Licensed: Reaa 2008), and took 28 days to sell. On 1 May 2024, 123 Crummer Road, Grey Lynn, Auckland, 1021 had a Rating Valuation with a Capital Value of $3,075,000, Land Value of $1,950,000 and Improvement Value of $1,125,000.
| Date | Type | Price | Agent/Agency |
|---|---|---|---|
| 6 Mar 2024 | SOLD | $3,325,000 | |
| 8 Feb 2024 | ASKING PRICE | $3,490,000 | Caroline Daniel of Kellands Real Estate Limited, (Licensed: Reaa 2008) |
| 6 Apr 2023 | Rented | $2,300 | Jonathan Lyons of Vic Road Rentals |
| 9 Jun 2022 | Rented | $2,150 | Jonathan Lyons of Vic Road Rentals |
| 24 Mar 2022 | Rented | $2,300 | Jonathan Lyons of Vic Road Rentals |
| 24 Nov 2021 | Rented | $2,300 | Jonathan Lyons of Vic Road Rentals |
| 14 Mar 2021 | Rented | $2,500 | Jonathan Lyons of Vic Road Property Management |
| 12 Nov 2015 | SOLD | $2,249,000 | Pene Milne of Pene Milne Properties |
| 28 Jul 2015 | AUCTION | Price Not Disclosed | Pene Milne of Pene Milne Properties |
| 3 Nov 2011 | SOLD | $1,460,000 | Maxine Lees of Ray White Re |
| 12 Oct 2011 | DEADLINE PRIVATE TREATY | Price Not Disclosed | Maxine Lees of Ray White Re |
| 3 Apr 1991 | SOLD | $178,000 |
Lot 18 Section 18 Deposited Plan 329
There are no similar properties in the area that are listed for sale or recently sold.